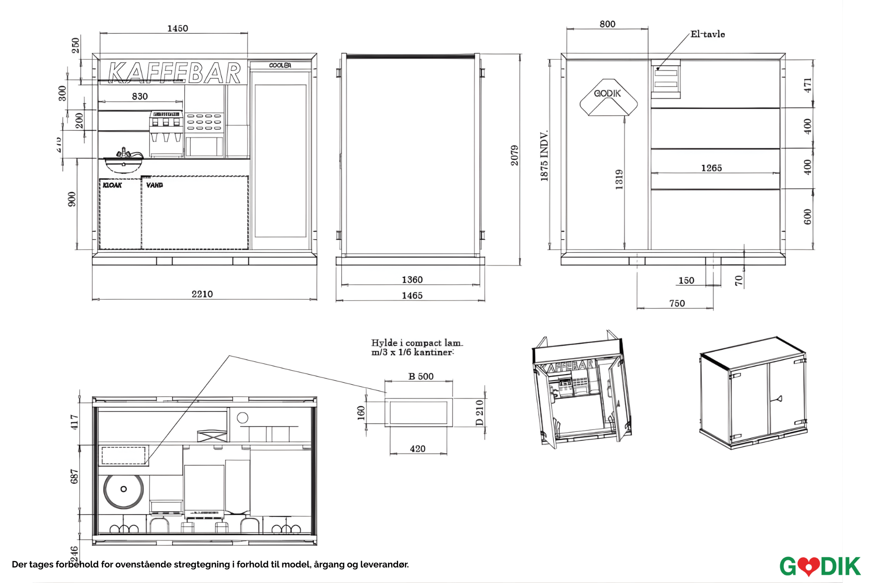
Servicemodul for kaffe mv.

0,00 kr. OutOfStock
Type a number, or use the decrease or increase button to change the quantity

Similar products