Vare nr. 04372

6 personers kontor og spisevogn - SOLAR

Udvalgte specificationer
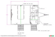
Bredde (cm)
228 cm
Højde (cm)
295 cm
Længde (cm)
320 cm
Om produktet

Off-grid kontorvogn med solceller, tank, samt vacuumtoilet

(Vi svarer typisk indenfor 1-2 hverdage)
Skal vi hjælpe med dit projekt?

Specifikationer

Number
04372
Højde (cm)
295 cm
Længde (cm)
320 cm
Bredde (cm)
228 cm
Synsfri sammenkobling (kg)
1500
Vandtilslutning
3/4” Nito kobling
Afløbstilslutning
1” Nito kobling
Antal spildevand tanke
1
Antal vand tanke
1
Batteri drift max. (timer)
12
Batteri drift min. (timer)
7
Batteri kapacitet (kWh)
5,12
Batteri kapacitet/drift (tekst)
(afhængigt af vejrforhold, sommer/vinterdag)
Kugletræk (mm)
50
Max. effektforbrug (W)
2690
Solcelle inverter (kWh)
2,2
Solcelle modul PV (kWh)
1,1
Spildevand tank (L)
219
Vand tank (L)
170

Beskrivelse

Kontorvogn med solcelledrift – miljøvenlig løsning med samme komfort og faciliteter som standard kontorvogne. Ideel løsning til off-grid projekter uden fast strøm.

Hvad er inkluderet i lejen?


Inventar
1 køleskab, 1 bord, 6 stole, kaffemaskine, 1 opslagstavle, el-radiator, LED lys, solceller. badeværelse.
Medfølger
25 meter vandslange, afløbsslange og elkabel, 2 stk. trapper, 1 stk. håndsving.